Musterhaus Ulm Fertighaus Weiss
Fertighaus Weiss Gmbh Postimet Facebook
Fertighaus Weiss For Android Apk Download
Weiss Musterhauser Offnungszeiten Feiertagen 19
Fertighaus Weiss Alle Hauser Preise Und Grundrisse
Fertighaus Weiss Preise Infos Kataloge
Fertighaus Weiss Gmbh Youtube
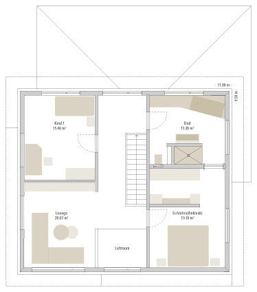
Das Fertighaus WEISS Musterhaus Ulm – modern, großzügig, offen, lichtdurchflutet und mit innovativer WEISSTechnik Die Architektur und Grundrissgestaltung basiert auf dem klassischen Einfamilienhaus mit Satteldach.
Musterhaus ulm fertighaus weiss. Fertighaus Modern Fertighaus Weiss Musterhaus Ulm grundriss einfamilienhaus modern mit flachdach architektur einfamilienhaus bauhaus hommage 295 das haus stuckleisten maßgenau schneiden » das sollten sie wissen fertighaus kubos von kampa fertigteilhaus musterhauspark bungalow stift fertighaus weiss musterhausnet haus bauen auffallende ideen für außenund mehrfamilienhaus als. Generation und Gewinner des „Oscars der Fertighausbranche“ Unser Musterhaus Ulm wurde mit dem „Cube“ für herausragende Leistungen im Bereich Technik und als beliebtestes Fertighaus 16 ausgezeichnet Modern, großzügig, offen, lichtdurchflutet und mit innovativer WEISSTechnik präsentiert sich das Plusenergiehaus der 3 Generation. Ulm (inactive) von Fertighaus WEISS Fertighaus Einfamilienhaus 175 m² Wohnfläche 8 Zimmer SatteldachKlassiker 1,5 Etagen Satteldach.
Fertighaus weiss Musterhaus ulm preis By on July 18th, / Uncategorized / No Comments Der Bau von Häusern mit 3DDrucktechniken mag futuristisch klingen, aber die eigentliche Praxis gewinnt langsam an Zugkraft Das TechStartup hausme beispielsweise hat vor kurzem ein neues Montagewerk in Reno, Nevada, eröffnet, wo es plant, seine. Musterhauspark in Ulm Fertighaus, Einfamilienhaus, Stadtvilla oder Bungalow Hausbau Kataloge bestellen auf fertighausportalnet. Fertighaus WEISS GmbH Musterhaus Relax Platz 6a Entspannt und stilvoll Wohnen Für individuelle Rückzugsmöglichkeiten und besonderen Komfort wurde ein außergewöhnlicher Entwurf geschaffen, zu dem ein separates, ins Schlafzimmer integriertes Elternbad, ein Sitzfenster im Erdgeschoss und eine offene Lounge im Dachgeschoss zählen.
Modernität mit Augenmaß Haus Geyer von Fertighaus WEISS ist ein individueller Entwurf mit gut durchdachten LösungenDas beginnt mit einer Fenstergeometrie, die mit Fingerspitzengefühl auf das dicht bebaute Umfeld abgestimmt wurde, geht weiter mit einem nahezu barrierefreien Wohnkonzept, einem behutsam austarierten Gleichgewicht von Weiträumigkeit und Nischenbildung, einem komfortablen. Alle Musterhäuser von Fertighaus WEISS im Überblick Holen Sie sich alle Infos zu Ihrem Traumhaus und bestellen Sie kostenlos einen Katalog!. Fertighaus WEISS Dieser Entwurf bietet im Erdgeschoss mit vielen großen bodentiefen Fensterflächen und zwei Erkern mit darüber liegenden Balkonen auf einer Wohnfläche von 86 m² nicht nur eine Küche, ein GästeWC mit Dusche, einen riesigen Wohn und Essbereich, sondern auch noch ein geräumiges Gästezimmer.
Fertighaus WEISS GmbH has a job opening for Fachberater/Vertriebsprofi (m/w/d) für unser Musterhaus Ulm in Ulm (published 21) Apply now or check the other. Das Fertighaus WEISS Musterhaus Ulm – modern, großzügig, offen, lichtdurchflutet und mit innovativer WEISSTechnik Die Architektur und Grundrissgestaltung basiert auf dem klassischen Einfamilienhaus mit Satteldach. Fertighaus Modern Fertighaus Weiss Musterhaus Ulm grundriss einfamilienhaus modern mit flachdach architektur einfamilienhaus bauhaus hommage 295 das haus stuckleisten maßgenau schneiden » das sollten sie wissen fertighaus kubos von kampa fertigteilhaus musterhauspark bungalow stift fertighaus weiss musterhausnet haus bauen auffallende ideen für außenund mehrfamilienhaus als.
Die Schwarzwaldregion und der Bodenseeraum gelten als Heimat vieler kluger Denker, innovativer Köpfe, qualitätsbewusstem und traditionellem Handwerk, präzisem und zuverlässigem Handeln Fertighaus WEISS Musterhaus VillingenSchwenningen. Das Musterhaus Relax von Fertighaus WEISS ist eine Wohlfühloase für seine Bewohner Es zeichnet sich aus durch individuelle Rückzugsmöglichkeiten und stilvolles Design Für besonderen Komfort sorgen ein in das Elternschlafzimmer integriertes Bad, während für die Kinder ein separates Duschbad im Obergeschoss eingeplant wurde. Generation und Gewinner des „Oscars der Fertighausbranche“ Unser Musterhaus Ulm wurde mit dem „Cube“ für herausragende Leistungen im Bereich Technik und als beliebtestes Fertighaus 16 ausgezeichnet Modern, großzügig, offen, lichtdurchflutet und mit innovativer WEISSTechnik präsentiert sich das Plusenergiehaus der 3 Generation.
Fertighaus Weiss Besichtigungstermine Dienstag bis Sonntag von 12 bis 17 Uhr Objektbeschreibung PLUSENERGIEHAUS DER 3 GENERATION Unser Musterhaus Ulm – modern, großzügig, offen, lichtdurchflutet und mit innovativer WEISSTechnik Die Architektur und Grundrissgestaltung basiert auf dem klassischen Einfamilienhaus mit Satteldach. Musterhaus Ulm von Fertighaus WEISS – Fertighaus mit Satteldach und 193,97 m² Wohnfläche inkl Preise und Grundrisse Jetzt Informationen anfordern!. Fertighaus WEISS bündelt von der Beratung über die Architektur, Statik und Bauleitung bis hin zu den Bau und Ausbaugewerken nahezu alle Leistungen unter einem Dach Daraus resultieren eine in der Branche einzigartige Fertigungstiefe und das treffende Motto des Fertighausherstellers „Planen und Bauen aus einer Hand“.
Seit 11 ist Fertighaus WEISS in OberrotScheuerhalden im SchwäbischFränkischen Wald beheimatet Damals von Josef Weiss als Zimmerei gegründet, hat sich der Hersteller bis heute zu einem mittelständischen Unternehmen mit rund 400 Mitarbeitern und zu einem der leistungsfähigsten Fertighausanbieter Deutschlands entwickelt. Fertighaus WEISS OnlineKatalog ansehen Inspiration, Tipps, Bautrends und vieles mehr Finden Sie Ihr Traumhaus im aktuellen OnlineKatalog von Fertighaus WEISS!. Das Fertighaus WEISS Musterhaus Ulm – modern, großzügig, offen, lichtdurchflutet und mit innovativer WEISSTechnik Die Architektur und Grundrissgestaltung basiert auf dem klassischen Einfamilienhaus mit Satteldach.
Unser Musterhaus Ulm – modern, großzügig, offen, lichtdurchflutet und mit innovativer WEISSTechnik Die Architektur und Grundrissgestaltung basiert auf dem klassischen Einfamilienhaus mit Satteldach Seit 11 ist Fertighaus WEISS in OberrotScheuerhalden im SchwäbischFränkischen Wald beheimatet Damals von Josef Weiss als Zimmerei. Das Fertighaus WEISS Musterhaus Ulm – modern, großzügig, offen, lichtdurchflutet und mit innovativer WEISSTechnik Die Architektur und Grundrissgestaltung basiert auf dem klassischen Einfamilienhaus mit Satteldach. Auch architektonisch ist das Musterhaus Ulm von Fertighaus Weiss besonders Da ist zum einen der mit Holz verschalte, großzügige Erker, der dem Haus ein besonderes Gesicht und dem Innenraum zusätzlichen Platz gibt Bemerkenswert sind auch die großen Fensterflächen, die das Haus schmücken und viel Licht ins Innere fließen lassen.
Die Belange modernen Wohnens und effizienter Technik vereinen sich in einer zurückhaltenden und zeitlosen Architektur ein offener, geradliniger und lichtdurchfluteter Grundriss mit viel Platz zum Leben in Küche, Ess und Wohnbereich Das Musterhaus Future von Fertighaus WEISS. Südwest Keller und Fertighaus Weiss Als Spezialist für Bodenplatten und Fertigkeller verwirklichen wir von Südwest Keller regelmäßig Projekte für Kunden verschiedener Fertighausanbieter Über die Erfahrungen, die wir dabei machen, möchten wir gerne berichten, um sie an unsere Kunden und Interessenten weiterzugeben. Seit 11 ist Fertighaus WEISS in OberrotScheuerhalden im SchwäbischFränkischen Wald beheimatet Damals von Josef Weiss als Zimmerei gegründet, hat sich der Hersteller bis heute zu einem mittelständischen Unternehmen mit rund 400 Mitarbeitern und zu einem der leistungsfähigsten Fertighausanbieter Deutschlands entwickelt.
Das Fertighaus WEISS Musterhaus Ulm – modern, großzügig, offen, lichtdurchflutet und mit innovativer WEISSTechnik Die Architektur und Grundrissgestaltung basiert auf dem klassischen Einfamilienhaus mit Satteldach. Fertighaus WEISS bündelt von der Beratung über die Architektur, Statik und Bauleitung bis hin zu den Bau und Ausbaugewerken nahezu alle Leistungen unter einem Dach Daraus resultieren eine in der Branche einzigartige Fertigungstiefe und das treffende Motto des Fertighausherstellers „Planen und Bauen aus einer Hand“. 2801 Fertighaus Weiss Musterhaus Ulm modern, großzügig, offen, lichtdurchflutet und mit innovativer WEISSTechnik Die Architektur und Grundrissgestaltung basiert auf dem klassischen Einfamilienhaus mit Satteldach Anbauten und Wohnerweiterungen im Erdgeschoss schaffen nicht nur mehr Innenraum sondern bewirken im Wechselspiel von Holz und Putzfassade ein stimmiges und.
Das Haus Wenninger von Fertighaus WEISS ein Entwurf der besonderen Art ist, lässt sich schon von außen an der interessanten Baukörpergeometrie und dem Swimming Pool im Garten ablesen Aber auch der Grundriss des individuellen Hanghauses hält einiges an Überraschungen bereit Gelebt wird hier auf drei Ebenen, so dass man bei der Planung der. Next Post Previous Post Geräumiges Einfamilienhaus ‘Musterhaus ULM’ von Fertighaus WEISS Alle Infos zum Haus inkl Frühstücksbuffet Grundrisse mit einem Klick auf das Bild erhalten – Fertighausde Energiesparhaus, große Fensterfront Ergeben Sie umherwandern eine Karriere vor, in der Sie mit Ihrer Einfallsreichtum Ihr Zuhause und Ihr Geschäft schöner ebenso komfortabler zeugen. Ulmer Hausbau Center Die große Musterhausausstellung in Süddeutschland, gleich an der UlmMesse Ihr Traumhaus erleben MiSo 1217 Uhr, Eintritt frei.
Musterhaus Life von Fertighaus WEISS – Fertighaus mit Zwerchdach und 152,93 m² Wohnfläche inkl Preise und Grundrisse Jetzt Informationen anfordern!. Mehrgenerationenhaus Seyther Fertighaus WEISS Mehrgenerationenhaus Satteldach Ideal für Familien 296 Quadratmeter Wfl Mehr Informationen auf Musterhausnet. Fertighaus Weiss Besichtigungstermine Dienstag bis Sonntag von 12 bis 17 Uhr Objektbeschreibung PLUSENERGIEHAUS DER 3 GENERATION Unser Musterhaus Ulm – modern, großzügig, offen, lichtdurchflutet und mit innovativer WEISSTechnik Die Architektur und Grundrissgestaltung basiert auf dem klassischen Einfamilienhaus mit Satteldach.
Entdecken Sie das Fertighaus Weiss Musterhaus Weiss Musterhaus Ulm in Ulm/Donau • Auf HausXXL finden Sie Bilder, Grundrisse und Informationen zum Fertighaus Weiss Musterhaus Weiss Musterhaus Ulm in Ulm/Donau!. Das Fertighaus WEISS Musterhaus Ulm – modern, großzügig, offen, lichtdurchflutet und mit innovativer WEISSTechnik Die Architektur und Grundrissgestaltung basiert auf dem klassischen Einfamilienhaus mit Satteldach. Dass man bei der Planung des individuellen Traumhauses nicht immer bei Null anfangen muss, erlebten Nadine und Viktor Stark beim Besuch im neuen Musterhaus Ulm des Herstellers Fertighaus Weiss Das gefiel ihnen so gut, dass ihre bisherige Hausplanung verwarfen und beschlossen, ihr neues Zuhause nach dem Vorbild des Musterhauses zu bauen.
11 Fertighaus Weiss Musterhaus Ulm modern, großzügig, offen, lichtdurchflutet und mit innovativer WEISSTechnik Die Architektur und Grundrissgestaltung basiert auf dem klassischen Einfamilienhaus mit Satteldach Anbauten und Wohnerweiterungen im Erdgeschoss schaffen nicht nur mehr Innenraum sondern bewirken im Wechselspiel von Holz und Putzfassade ein stimmiges und. Das Fertighaus WEISS Musterhaus Ulm – modern, großzügig, offen, lichtdurchflutet und mit innovativer WEISSTechnik Die Architektur und Grundrissgestaltung basiert auf dem klassischen Einfamilienhaus mit Satteldach. Unser Musterhaus Ulm wurde mit dem „Cube“ für herausragende Leistungen im Bereich Technik und als beliebtestes Fertighaus 16 ausgezeichnet Modern, großzügig, offen, lichtdurchflutet und mit innovativer WEISSTechnik präsentiert sich das Plusenergiehaus der 3 Generation.
Ulmer Hausbau Center Die große Musterhausausstellung in Süddeutschland, gleich an der UlmMesse Ihr Traumhaus erleben MiSo 1217 Uhr, Eintritt frei. Mit seinem gut durchdachten Satteldach Grundriss für 4 Personen, dem modernen und großzügigen Wohnkonzept sowie dem zukunftsweisenden Energiestandard eines E. Das Fertighaus WEISS Musterhaus Ulm – modern, großzügig, offen, lichtdurchflutet und mit innovativer WEISSTechnik Die Architektur und Grundrissgestaltung basiert auf dem klassischen Einfamilienhaus mit Satteldach.
Mit dem neuen PlusenergieMusterhaus der 3 Generation setzt Fertighaus WEISS im Ulmer HausbauCenter neue Maßstäbe in Sachen intelligenter Energieeffizienz,. Musterhaus Ulm von Fertighaus WEISS – Fertighaus mit Satteldach und 193,97 m² Wohnfläche inkl Preise und Grundrisse Jetzt Informationen anfordern!. Seit 11 ist Fertighaus WEISS in OberrotScheuerhalden im SchwäbischFränkischen Wald beheimatet Damals von Josef Weiss als Zimmerei gegründet, hat sich der Hersteller bis heute zu einem mittelständischen Unternehmen mit rund 400 Mitarbeitern und zu einem der leistungsfähigsten Fertighausanbieter Deutschlands entwickelt.
Einfamilienhaus Mh Ulm Von Fertighaus Weiss Fertighaus De
Download Fertighaus Weiss Gmbh
Grosser Deutscher Fertighauspreis 16
Einfamilienhaus Mh Ulm Von Fertighaus Weiss Fertighaus De
Fertighaus Weiss Musterhaus Gunzburg Fertighaus Weiss Anbieter Fertighauswelt De
Fertighaus Weiss Musterhaus Ulm
Musterhaus Ulm Fertighaus Weiss Bautipps De
Fertighaus Weiss Gmbh
Musterhaus Ulm Fertighaus Weiss Baustil Haus Fertighauser
Top Musterhaus Von Fertighaus Weiss Musterhaus Gunzburg
Musterhaus Ulm Fertighaus Weiss
Fertighaus Weiss Musterhaus Cube In Ulm
Musterhaus Ulm Fertighaus Weiss Bautipps De
Fertighaus Weiss Ulm Fertighaus Uber 300 000 Von Luxhaus Landhaus 290
Fertighaus Weiss Preise Infos Kataloge
Fertighaus Weiss Preise Infos Kataloge
Musterhaus Ulm Von Fertighaus Weiss Zuhause3 De
Fertighaus Weiss Musterhaus Cube In Ulm
Fertighaus Weiss Individuell Konzipierte Fertighauser
Fertighaus Weiss Musterhaus Ulm
Fertighaus Hersteller Fertighaus Weiss Bautipps De
Fertighaus Weiss Musterhaus Cube In Ulm
Musterhaus Ulm Fertighaus Weiss
Fertighauser Kataloge
Fertighaus Weiss Preise Infos Kataloge
Fertighaus Weiss Ulm Fertighaus Uber 300 000 Von Luxhaus Landhaus 290
Musterhaus Ulm Fertighaus Weiss Fertighauser Moderne Hausentwurfe Style At Home
Einfamilienhaus Mh Ulm Von Fertighaus Weiss Fertighaus De
Musterhaus Ulm Fertighaus Weiss
Musterhaus Ulm Fertighaus Weiss Weiss Fertighaus Fertighauser Musterhaus
M Usterhaus Poing Fertighaus Weiss Gmbh
Musterhaus Gunzburg Von Fertighaus Weiss Youtube
Fertighaus Weiss Musterhaus Vision In Oberrot
Fertighaus Weiss Gmbh Kinold Messen
Fertighaus Weiss Oberrot Scheuerhalden De 744 Houzz De
Fertighaus Weiss Musterhaus Cube In Ulm
Fertighaus Weiss Gmbh Fotografie
Fertighaus Weiss Musterhaus Eroffnung Ulm
Musterhaus Ulm Fertighaus Weiss Bautipps De
Fertighaus Weiss Musterhauser
Musterhaus Erlangen Fertighaus Weiss
Musterhaus Ulm Fertighaus Weiss
Fertighaus Weiss Musterhaus Ulm
Musterhaus Ulm Fertighaus Weiss
Fertighaus Weiss Musterhaus Ulm In Weiss Fertighaus Fertighauser Einbaumobel
Musterhaus Ulm Fertighaus Weiss In Fertighauser Weiss Fertighaus Musterhaus
Fertighaus Weiss Gmbh Youtube
Lehner Haus Musterhaus Ulm Am Messegelande Youtube
Musterhaus Ulm Fertighaus Weiss
Top Musterhaus Von Fertighaus Weiss Musterhaus Gunzburg
Fertighaus Weiss Ulm Fertighaus Uber 300 000 Von Luxhaus Landhaus 290
Fertighaus Weiss Gmbh Postimet Facebook
Fertighaus Weiss Musterhaus Plusenergiehaus Ulm
Fertighaus Weiss Musterhaus Ulm
Musterhaus Ulm Fertighaus Weiss
Musterhauspark Hausbau Center Ulm
Fertighaus Weiss Musterhaus Ulm
Einfamilienhaus Mh Ulm Von Fertighaus Weiss Fertighaus De
Fertighaus Weiss Musterhaus Cube In Ulm
Fertighaus Weiss Musterhaus Style In Oberrot
Fertighaus Weiss Musterhaus Ulm
Smartes Plusenergiehaus Mit Loxone Und Sma Das Intelligente Haus
Haustour Musterhaus Ulm Fertighaus Weiss Youtube
Fertighaus Weiss Preise Infos Kataloge
Traumhaus Filme Rund Um Fertighaus Weiss
Fertighaus Hersteller Fertighaus Weiss Bautipps De
Fertighaus Weiss Musterhaus Plusenergiehaus Ulm
Hausbau Center Ulm Im Grossen Musterhaus Report 19
Einfamilienhaus Mh Ulm Von Fertighaus Weiss Fertighaus De
Musterhaus Ulm Von Fertighaus Weiss Zuhause3 De
Einfamilienhaus Mh Ulm Von Fertighaus Weiss Fertighaus De
Fertighaus Aufbau Montage Musterhaus Ulm Von Rensch Haus Youtube
Musterhaus Ulm Fertighaus Weiss Musterhaus Fertighauser Einfamilienhaus Bauen
Top Musterhaus Von Fertighaus Weiss Musterhaus Gunzburg
19 Musterhaus Ulm Ideen Musterhaus Fertighauser Plusenergiehaus
Fertighaus Weiss Musterhaus Cube In Ulm
Hausbau Center Ulm Im Grossen Musterhaus Report 19
Fertighaus Weiss Musterhaus Ulm
Musterhaus Ulm Modern Treppen Stuttgart Von Fertighaus Weiss
Musterhaus Ulm Fertighaus Weiss Bautipps De
Fertighaus Weiss Musterhaus Ulm
Fertighaus Weiss Ulm Fertighaus Uber 300 000 Von Luxhaus Landhaus 290
Roomtour Haus Des Monats Gross Fertighaus Weiss Youtube
Schworer Musterhaus In Ulm Schworerhaus
Fertighaus Weiss Musterhaus Ulm
Fertighaus Weiss Musterhaus Cube In Ulm
Musterhaus Ulm Fertighaus Weiss
Fertighaus Weiss Musterhaus Ulm
Einfamilienhaus Mh Ulm Von Fertighaus Weiss Fertighaus De
Fertighaus Weiss Musterhaus Ulm
Fertighaus Weiss Preise Infos Kataloge
Fertighaus Weiss Musterhaus Ulm
Fertighaus Weiss Musterhaus Ulm
Weiss Musterhauser Offnungszeiten Feiertagen 19 Fertighaus Portal Net


