Fertighaus Galerie Luftraum
Luftraum Pro Contra Erfahrungen
Massivhaus Massivhauser Massivbau Massivhaus Schlusselfertig Massivhaus Bungalow Massivhaus Fertighaus Massivbauweise
Musterhaus Fertighaus Jonas Von Baumeister Haus Kooperation E V
Ideen Fur Den Luftraum Im Haus Eine Galerie Als Highlight Stauraum Und Nutzraum Youtube
Einfamilienhaus Stadtvilla 159 Von Suckfull Fertighaus De
Lichtdurchflutete Blockhausvilla In Weiss Livvi De
Beleuchtung galerie luftraum Tausende Lampen sofort lieferbar!.
Fertighaus galerie luftraum. Fertighaus WEISS Musterhaus Ulm Den direkten kommunikativen und visuellen Bezug zum Erdgeschoss ermöglicht die Galerie mit Luftraum Eine SchlafAnkleideBadKombination sowie ein geräumiges Kinderzimmer runden das Raumprogramm ab Musterhaus Ulm Treppe und Galerie. Kaiser Kundenhaus von Baufritz Fertighaus Einfamilienhaus 148 m² Wohnfläche 3 Zimmer SatteldachKlassiker 2 Etagen Satteldach. Fertighaus modern bauen mit versetztem Satteldach, moderner Putz Holz Glas Fassade & XL Wintergarten Erker, Haus Grundriss Einfamilienhaus mit Galerie, 5 Zimmer, 0 qm, Balkon, gerade Treppe offen mit Luftraum, 3 Kinderzimmer / Arbeitszimmer Fertighaus CONCEPTM 170 VillingenSchwenningen / BienZenker Haus Design Ideen innen aussen.
Galerie(Ohne Gewähr) Neue Häuser werden schon so energiesparend gebaut, da darf man sich diesen "Luxus" schon gönnen Wenn die Galerie geschickt das Sonnenlicht nutzt und die Stiege im Wohnbereich ist, kann sogar ein Wärmekreislauf entstehen (muss man durchrechnen lassen) Dann ist die Galerie sogar "praktisch". Fertighaus Familienhaus Musterhaus LINEAR von Meisterstück, errichtet als Fertighaus mit Satteldach zum Preis ab € Grundrisse, Bilder und Preise Katalog bestellen!. Eine Stadtvilla mit Licht und Sicht Die Eheleute Jelic lieben ihr Fertighaus Es war der Nachbar, der Jelics das Bauen mit FingerHaus empfohlen hatte.
Die Galerie gibt über einen Luftraum den Blick auf das untere Stockwerk frei Die für die Heizung eingesetzte Luft/WasserWärmepumpe mit Fussbodenheizung und Warmwassererzeugung sowie die kontrollierte Be und Entlüftung lassen das Haus zu einem TOPEnergiesparhaus mit NullCO2 Ausstoss werden. Das Pendeln war irgendwann zu viel für Claudia Meffert Und so verlegte die Apothekerin ihren Wohnsitz an den Arbeitsort, der auch ihre Heimat ist Mit ihrem Lebensgefährten Werner Gebauer baute sie dort bereits ihr zweites FingerHaus ein eineinhalbgeschossiges Traumhaus mit Galerie, Sauna und großem Garten. Die lichtdurchflutete Galerie bietet genügend Raum für einen außergewöhnlich schönen und hellen Arbeitsplatz Die Stadtvilla wurde individuell nach Kundenwunsch konzipiert und von STREIF in Fertigbauweise geplant und realisiert.
Nov 18, 19 Endearing Ground Floor House Plans Furniture Set Single storey house design ground floor 2 Storey House Design with Floor Plan 3d House Plan 25x40 Feet Indian Plan Ground Floor ground. Entdecke 102 modernste Fertighäuser, zum schlüsselfertigen Bauen mit Haas Haus Jetzt entdecken!. Das Raumkonzept ist so angelegt, dass auch das Wohnen auf einer Etage möglich ist Im Obergeschoss befinden sich zwei Kinderzimmer mit Kinderbad und ein Elternbereich mit separater Ankleide und Bad en suite Der Elternbereich ist ein wirklicher Rückzugsort mit Zugang zum Balkon Der Flurbereich ist als Galerie mit einem Luftraum geplant.
Ein Designklassiker mit Galerie und repräsentativer Postdesttreppe Dieses MeisterstückBAUHAUS in ökologischer Holztafelbau ist ein eleganter Flachdachbau mit zwei Vollgeschossen und bietet offener, heller Lebensbereich mit repräsentativer Podesttreppe und Galerie/Luftraum (optional zusätzlicher Raum statt Luftraum im OG) mit vier Schlafräumen und zwei Bädern (2. Wenn Sie ein Einfamilienhaus kaufen, können Sie mit uns entweder ein komplett individuell geplantes Architektenhaus bauen oder Sie greifen auf einen unserer bewährten Grundrisse und Haustypen zurück. Im Inneren der Fertighaus Stadtvilla beeindruckt die 2geschossige Diele mit heller Galerie, raumhoher Verglasung und offen gestalteter Podesttreppe aus Holz Ein weiteres Highlight im Erdgeschoss ist das große Wohn und Esszimmer mit offener Küche und einem zweigeschossigen Luftraum Ein separates Arbeitszimmer steht ebenfalls zur Verfügung.
Enjoy the videos and music you love, upload original content, and share it all with friends, family, and the world on YouTube. Fertighaus modern bauen mit versetztem Satteldach, moderner Putz Holz Glas Fassade & XL Wintergarten Erker, Haus Grundriss Einfamilienhaus mit Galerie, 5 Zimmer, 0 qm, Balkon, gerade Treppe offen mit Luftraum, 3 Kinderzimmer / Arbeitszimmer Fertighaus CONCEPTM 170 VillingenSchwenningen / BienZenker Haus Design Ideen innen aussen, Interieurs, Inneneinrichtung, Hausbau Pläne Neubau. Nov 18, 19 Endearing Ground Floor House Plans Furniture Set Single storey house design ground floor 2 Storey House Design with Floor Plan 3d House Plan 25x40 Feet Indian Plan Ground Floor ground.
Durch den Luftraum und die Galerie ist das Gestaltungsprinzip optimal umgesetzt Die Treppe erschließt das Obergeschoss zentral und fügt sich harmonisch ins Ensemble des LifeStyle 1804 W ein Nachhaltig gebaut, für die Stadt optimiert Das LifeStyle 1804 W ist eine tolle Idee für Baufamilien mit dem Wunsch nach dem Besonderen. Fertighaus modern bauen mit versetztem Satteldach, moderner Putz Holz Glas Fassade & XL Wintergarten Erker, Haus Grundriss Einfamilienhaus mit Galerie, 5 Zimmer, 0 qm, Balkon, gerade Treppe offen mit Luftraum, 3 Kinderzimmer / Arbeitszimmer Fertighaus CONCEPTM 170 VillingenSchwenningen / BienZenker Haus Design Ideen innen aussen. Das Pendeln war irgendwann zu viel für Claudia Meffert Und so verlegte die Apothekerin ihren Wohnsitz an den Arbeitsort, der auch ihre Heimat ist Mit ihrem Lebensgefährten Werner Gebauer baute sie dort bereits ihr zweites FingerHaus ein eineinhalbgeschossiges Traumhaus mit Galerie, Sauna und großem Garten.
Zunächst einmal sollten Sie bei einem eher kleineren Haus fragen, ob eine Galerie sinnvoll erscheint Denn meist weist eine Galerie wenig Möblierungspotenzial auf und nimmt durch den Luftraum wertvollen Platz für möglichen Wohnraum Im Normalfall müssen Sie darüber hinaus mit akustischen Beeinträchtigungen im Galeriebereich rechnen Die. Seit über 40 Jahren bauen wir massive Blockhäuser grenzenlos individuell und konsequent ökologisch Blockhaus, Holzhaus und FengShuiHaus, Blockhäuser, ökologisches Bauen Auf den folgenden Seiten zeigen wir Ihnen die vielfältigen Möglichkeiten, sich und Ihrer Familie den Traum vom eigenen Holzhaus zu erfüllen NORWOOD baut Blockhäuser und Holzhäuser für jeden Geschmack und jedes. Entdecke 102 modernste Fertighäuser, zum schlüsselfertigen Bauen mit Haas Haus Jetzt entdecken!.
Fertighaus mit Galerie Plan E 2141 Als Individualist in jeglicher Hinsicht präsentiert sich dieses Fertighaus mit Galerie Von außen mit Satteldach und Lamellenfassade in Opak und großen, teilweise ÜberEck angeordneten Fensterflächen Im Inneren mit einläufiger Treppe, Glasdach und Podest auf der großen Galerie im Dachgeschoss. Im Inneren der Fertighaus Stadtvilla beeindruckt die 2geschossige Diele mit heller Galerie, raumhoher Verglasung und offen gestalteter Podesttreppe aus Holz Ein weiteres Highlight im Erdgeschoss ist das große Wohn und Esszimmer mit offener Küche und einem zweigeschossigen Luftraum Ein separates Arbeitszimmer steht ebenfalls zur Verfügung. 0118 Erkunde brunkvolls Pinnwand „Luftraum Galerie“ auf Weitere Ideen zu haus, luftraum, haus innenarchitektur.
Zum Thema Schallschutz bei Galerie Luftraum im OG gibt es 10 Beiträge Themen Beiträge 4107 Mitglieder. Most of us are dreaming to have a house that we can call our own Even more exciting and proud if we can build a two story house with elegant finish. Die lichtdurchflutete Galerie bietet genügend Raum für einen außergewöhnlich schönen und hellen Arbeitsplatz Die Stadtvilla wurde individuell nach Kundenwunsch konzipiert und von STREIF in Fertigbauweise geplant und realisiert.
Ein 1,10 Meter hoher Kniestock und die großformatige Gaube im Dach schaffen bei diesem modernen Fertighaus auch im oberen Stockwerk viel Höhe Ein großer Luftraum erhellt das gesamte Erdgeschoss Das Architektenhaus nach Kundenwunsch bietet 187 Quadratmeter Wohnfläche und kommt mit Holzrahmenkonstruktion in Großtafelbauweise Preis auf. Erkunde Karlheinz Oellerss Pinnwand „Luftraum“ auf Weitere Ideen zu luftraum, design lampen, kronleuchter modern. Die HausbauRedaktion zeigt Das Musterhaus "Innovation R" von RenschHaus in der FertighausAusstellung Eigenheim und Garten in Bad Vilbel Das ökologisch o.
Avr 18 Cette épingle a été découverte par Prinzessin Découvrez vos propres épingles sur et enregistrezles. Galerie und Luftraum wirken großzügig Luxuriös und puristisch das Bad Fertighaus Weiss – Haus Skarupke – Bautafel WohnNutzFläche EG 79,76 m 2, OG 68,38 m 2 Abmessungen 9,60 m x 10,50 m Bauweise Holzrahmenbau, UWert der Außenwand 0,138 W/(m 2 K) je nach Fassadenart. Durch die Galerie gewinnt Landhaus Kaiser einen Luftraum von bis zu sieben Metern Höhe bis unter das Satteldach Zu genießen von der Esstafel im fließenden Grundriss WohnenEssenKochen oder vom atmosphärischen GalerieSchlafzimmer aus.
Mit rund 2 qm Wohnfläche und insgesamt 6 Zimmern bietet der Haus Grundriss viel Platz für die ganze Familie Das Erdgeschoss ist offen gestaltet mit einem großen Wohn und Esszimmer mit integrierter Küche, Kochinsel und 2geschossiger Galerie mit Luftraum Das Obergeschoss wird über eine gerade Treppe erschlossen. 21 Erkunde Prinzessins Pinnwand „Haus Luftraum Galerie“ auf Weitere Ideen zu luftraum, haus, raum. Galerie/Luftraum Startseite / Galerie/Luftraum Haus_817 Gallerie Haus_817 manuel adelhardt T Einfamilienhaus 148 m².
Kaiser Kundenhaus von Baufritz Fertighaus Einfamilienhaus 148 m² Wohnfläche 3 Zimmer SatteldachKlassiker 2 Etagen Satteldach. Einfamilienhaus Neubau modern mit Satteldach bauen Fertighaus Haus Grundriss offen 6 Zimmer, 2 qm mit Büro, Erker, Balkon & Carport Garage Haus und Garten Design Ideen innen & aussen, Architektur Inspirationen Bien Zenker Haus Pläne CONCEPTM 154 Hannover Hausbau Pläne, Haus Deko Design, Zeichnungen, Visualisierung, Hausplan und Innenarchitektur auf HausbauDirektde. Bei Haas Haus können Sie beim Hausbau sehr individuell entscheiden, auch wenn Sie ein Fertighaus bauen!.
Haus bauen einfach gemacht?. Optisch sorgt die Galerie mit Luftraum für ein exklusives Lebensgefühl Neben den unzähligen Design und Komfortelementen verfügt das Haus unter anderem auch über eine WohlfühlKlimaHeizung mit Anbindung an die Hausautomation So wird Energiesparen mit Komfort und Sicherheit verbunden info(at)deutschesfertighauscenterde. Ein Designklassiker mit Galerie und repräsentativer Postdesttreppe Dieses MeisterstückBAUHAUS in ökologischer Holztafelbau ist ein eleganter Flachdachbau mit zwei Vollgeschossen und bietet offener, heller Lebensbereich mit repräsentativer Podesttreppe und Galerie/Luftraum (optional zusätzlicher Raum statt Luftraum im OG) mit vier Schlafräumen und zwei Bädern (2.
Modernes Haus Design innen & aussen mit Satteldach & Putz Fassade weiß Einfamilienhaus Grundriss offen mit Büro Anbau, Erker, Galerie & Balkon, 5 Zimmer, 195 qm, ohne Keller bauen Fertighaus Ideen, Garten Design & Architektur Inspiration CONCEPTM 166 Erfurt von Bien Zenker Hausbau Pläne Neubau, Deko, Zeichnungen, Visualisierung, Hausplan, Einrichtung und Innenarchitektur auf. Lampen & Leuchten Wohnlichtco SuperAngebote für Galerie Beleuchtung hier im Preisvergleich bei Preisde!Galerie Beleuchtung zum kleinen Preis In geprüften Shops bestellen Lampen für die perfekt inszenierte LuftraumBeleuchtung Wenn im privaten Zuhause, dem Geschäft oder im Büro alle wesentlichen BeleuchtungsElemente an. Galerie(Ohne Gewähr) Neue Häuser werden schon so energiesparend gebaut, da darf man sich diesen "Luxus" schon gönnen Wenn die Galerie geschickt das Sonnenlicht nutzt und die Stiege im Wohnbereich ist, kann sogar ein Wärmekreislauf entstehen (muss man durchrechnen lassen) Dann ist die Galerie sogar "praktisch".
Swissbau Fertighaus AG, 5102 Rupperswil Telefon 41 62 7 41 Mail info@swissbaufertighausch Website swissbaufertighausch. Die Galerie stellt über den Luftraum eine enge Verbindung der beiden Geschosse untereinander her Wird das Haus zu zweit bewohnt, dürfte es mit dieser Variante wenig Probleme geben Dank der imposanten DetailAusführung mit Glasgeländer wirkt die Öffnung im Wohnbereich nach oben fast unbegrenzt. Durch den Luftraum kann auch Wohnfläche verloren gehen Dafür wirkt Ihr neues Haus mit Galerie durch die doppelte Deckenhöhe großzügig und luftig Eine Galerie können Sie über dem Wohn und Essbereich oder der Diele planen Hier finden Sie Beispiele mit passenden Grundrissen.
Zum Thema Schallschutz bei Galerie Luftraum im OG gibt es 10 Beiträge Themen Beiträge 4107 Mitglieder. Mit rund 2 qm Wohnfläche und insgesamt 6 Zimmern bietet der Haus Grundriss viel Platz für die ganze Familie Das Erdgeschoss ist offen gestaltet mit einem großen Wohn und Esszimmer mit integrierter Küche, Kochinsel und 2geschossiger Galerie mit Luftraum Das Obergeschoss wird über eine gerade Treppe erschlossen. Fertighaus modern bauen mit versetztem Satteldach, moderner Putz Holz Glas Fassade & XL Wintergarten Erker, Haus Grundriss Einfamilienhaus mit Galerie, 5 Zimmer, 0 qm, Balkon, gerade Treppe offen mit Luftraum, 3 Kinderzimmer / Arbeitszimmer Fertighaus CONCEPTM 170 VillingenSchwenningen / BienZenker Haus Design Ideen innen aussen.
Galerie über den Essplatz Eine beliebte und häufige Version ist die Galerie über dem Essplatz Der Luftraum, der hier beide Ebenen verbindet, vermittelt optische Weite und das Gefühl, das komplette Geschehen im Haus zu überblicken Wird das Haus zu zweit bewohnt, dürfte es mit dieser Galerie auch wenig Probleme geben. Die HausbauRedaktion zeigt Das Musterhaus "Innovation R" von RenschHaus in der FertighausAusstellung Eigenheim und Garten in Bad Vilbel Das ökologisch o. Fertighaus modern bauen mit versetztem Satteldach, moderner Putz Holz Glas Fassade & XL Wintergarten Erker, Haus Grundriss Einfamilienhaus mit Galerie, 5 Zimmer, 0 qm, Balkon, gerade Treppe offen mit Luftraum, 3 Kinderzimmer / Arbeitszimmer Fertighaus CONCEPTM 170 VillingenSchwenningen / BienZenker Haus Design Ideen innen aussen.
Moderne Formensprache, maximale Transparenz Transparenter kann das Thema Galerie kaum umgesetzt werden Schon von außen lässt sich diese Philosophie erkennen Ein hohes Fenster, das die Geometrie des Baukörpers aufgreift, zeichnet den Luftraum nach und erlaubt einen Blick durchs Haus bis zum dahinter liegenden See. Fertighaus mit Galerie Plan E 2141 Als Individualist in jeglicher Hinsicht präsentiert sich dieses Fertighaus mit Galerie Von außen mit Satteldach und Lamellenfassade in Opak und großen, teilweise ÜberEck angeordneten Fensterflächen Im Inneren mit einläufiger Treppe, Glasdach und Podest auf der großen Galerie im Dachgeschoss. Durch seinen Luftraum mit Galerie erleben Sie das Fertighaus in seiner gesamten Höhe Außerdem ist ein separater Büroteil angeschlossen Großzügiges Raumgefühl entsteht im Wohnzimmer durch bodentiefe Fensteröffnungen, die geradläufige Treppe und den zweigeschossigen Luftraum mit Galerie, der das Fertighaus in seiner gesamten Höhe.
Fertighaus modern bauen mit versetztem Satteldach, moderner Putz Holz Glas Fassade & XL Wintergarten Erker, Haus Grundriss Einfamilienhaus mit Galerie, 5 Zimmer, 0 qm, Balkon, gerade Treppe offen mit Luftraum, 3 Kinderzimmer / Arbeitszimmer Fertighaus CONCEPTM 170 VillingenSchwenningen / BienZenker Haus Design Ideen innen aussen. Avr 18 Cette épingle a été découverte par Prinzessin Découvrez vos propres épingles sur et enregistrezles. Luftraum to Go Wir beliefern Euch mit 0,5l hausgemachtem Himbeerlimes und einer Luftraum Überraschungs CD zum Preis von 30€ Bestellen könnt Ihr unter Whatsapp 0176/ Home Galerie.
Besonders interessant für angehende Baufamilien sind ein Erker mit großem HebeSchiebeElement, der Flachdachquergiebel im lichtdurchfluteten Eingangsbereich inklusive Galerie mit großen Luftraum im Dachgeschoss, eine komplett bodentiefe Fensterverglasung und abgesenkte Schwellen im Erdgeschoss sowie die raumsparende, geradläufige Treppe. Fertighaus bungalow mit garage Luxus bungalow grundrisse Haus mit luftraum Stadtvilla Hausgrundrisse Smiley sauna Villen grundriss Bauhaus einfamilienhaus satteldach Haus u form Treppe symbol grundriss Pferdestall luxus Hausmaße Haus mit galerie grundriss. Haus bauen einfach gemacht?.
70 Luftraum Ideen Innenarchitektur Luftraum Wohnung
Details Modernes Fachwerkhaus Landhaus Concentus Modernes Fachwerkhaus
Offenes Wohnzimmer Mit Hohem Luftraum Und Galerie Fertighauser Haus Fingerhut Haus
Hersteller Streif Zur Galerie Geoffnete Kuche Bild 2 Schoner Wohnen
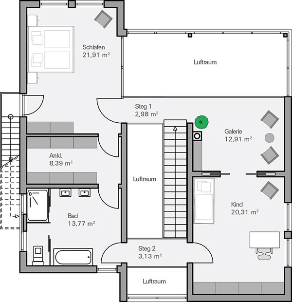
Grundriss Einfamilienhaus Mit Galerie Und Luftraum 5 Zimmer Satteldach Architektur Erker Anba Grundriss Einfamilienhaus Haus Grundriss Grundriss Stadtvilla
Grundrisse Fur Hauser Mit Galerie Viel Licht Und Platz Im Haus
Offenes Landhaus Kaiser Mit Giebelverglasung Und Galerie
Griffner Square I Fertighaus Schlusselfertig Bauen I Fertighaus Osterreich
Luftraum Haus Galerie Haus Wohnzimmer Haus Und Wohnen Wohnung Innenarchitektur
Streif Erfahrungen Familie Ott
Haus Grafenberg Fertighaus Keitel
Offenes Landhaus Kaiser Mit Giebelverglasung Und Galerie
Holzhaus Bad Vilbel D168 Mit Galerie Frammelsberger Holzbau Hausbaudirekt De
Fertighaus Variant 25 1 Hanse Haus
Mit Der Galerie Als Verbindungsbereich Zu Mehr Attraktivitat Livvi De
Haas G 139 Klassisches Einfamilienhaus Haas Fertighaus
Mit Der Galerie Als Verbindungsbereich Zu Mehr Attraktivitat Livvi De
Offener Essbereich Mit Galerie Inspiration Aus Einem Frammelsberger Holzbau Haus Auf Der Fertighaus De Webs Fertighauser Holzhaus Offener Grundriss
Streif Erfahrungen Familie Ott
Grundrisse Fur Hauser Mit Galerie Viel Licht Und Platz Im Haus
Haus Esslingen Fertighaus Keitel
Dreigiebelhaus Tritos 1 1730 Musterhaus In Hessdorf Bei Nurnberg Holzbauwelt
Let The Sun Shine Bauernhaus Innenbereich Minimalistisch Wohnen Design Fur Zuhause
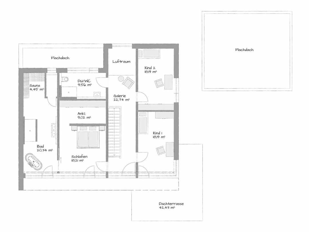
Mit Galerie Und Dachterrasse Bautipps De
Grundrisse Fur Hauser Mit Galerie Viel Licht Und Platz Im Haus
Haus Dettingen Frammelsberger Design Linie 1 Holzbauwelt
Einfamilienhaus Elk Haus 1 Mit Galerie Elk Fertighaus Hausbaudirekt De
Grundrisse Fur Hauser Mit Galerie Viel Licht Und Platz Im Haus
Musterhaus Kubos 1 25
Modernes Fertighaus Mit Galerie Satteldach Architektur 5 Zimmer Grundriss Quadratisch 160 Qm Zwei Etagen Luftr Haus Grundriss Haus Design Haus Architektur
Holzhaus Niedersachsen Fullwood Wohnblockhaus
Grundrissidee Stadtvilla Massivhaus Osnabruck Melle Haus Bauen Planen Und Bauen Architektenhaus Fertighaus Schlusselfertiges Bauen
Vitalhaus Ingolstadt Regnauer Anbieter Fertighauswelt De
Details Modernes Fachwerkhaus Landhaus Concentus Modernes Fachwerkhaus
Offenes Landhaus Kaiser Mit Giebelverglasung Und Galerie
Architekten Haus Cassini Modernes Wohnhaus
Regnauer Vitalhaus Munchen
Modernes Wohn Und Esszimmer Mit Galerie Luftraum Inneneinrichtung Modern Ideen Fertighaus Design 168 Von Frammelsberge Haus Design Design Fur Zuhause Haus
Regnauer Vitalhaus Bernstadt
Fertighaus Weiss Musterhaus Cube In Ulm
Skeletthaus Mit Galerie Bautipps De
Streif Erfahrungen Familie Ott
Offenes Landhaus Kaiser Mit Giebelverglasung Und Galerie
Grundrisse Fur Hauser Mit Galerie Viel Licht Und Platz Im Haus
Streif Erfahrungen Familie Ott
Massivhaus Massivhauser Massivbau Massivhaus Schlusselfertig Massivhaus Bungalow Massivhaus Fertighaus Massivbauweise
Esszimmer Mit Vielen Fenstern Unter Galerie Luftraum Fertighauser Schworer Haus Flachdachhaus
Haas G 139 Klassisches Einfamilienhaus Haas Fertighaus
Helles Haus Mit Grossflachige Fenster E 196 3 Schworerhaus
Architekten Haus Cassini Modernes Wohnhaus
Einfamilienhaus Elk Haus 1 Mit Galerie Elk Fertighaus Hausbaudirekt De
Roth Immobilien Haus Favorit Vertriebspartner Fertighaus Bauen Bauhauser
Einfamilienhaus Concept M 211 Mannheim Von Bien Zenker Fertighaus De
Streif Erfahrungen Familie Ott
Holzhaus Niedersachsen Fullwood Wohnblockhaus
Gallerie Hauser Geben Viel Licht Bautipps De
Moderne Stadtvilla Mit Walmdach Holz Putz Fassade Offenem Grundriss Mit Galerie Bauen Fertighaus Walmdach Haus Fassade Haus
Satteldachhauser Elara Www Fingerhuthaus De
Helles Haus Mit Grossflachige Fenster E 196 3 Schworerhaus
Helles Haus Mit Grossflachige Fenster E 196 3 Schworerhaus
Helles Haus Mit Grossflachige Fenster E 196 3 Schworerhaus
Helles Haus Mit Grossflachige Fenster E 196 3 Schworerhaus
Haas Tl 158 Hanghaus Haas Fertighaus
Klassische Satteldachhauser Magos
Offenes Landhaus Kaiser Mit Giebelverglasung Und Galerie
Stadtvilla Neubau Modern Mit Zeltdach Architektur Eingangsbereich Mit Galerie Luftraum Haus Bauen Ideen Grundriss Eigenheim Bauen Stadtvilla Haus Grundriss
Design Haus Concept M 211 Mannheim Hausbaudirekt De
Luftraum Pro Contra Erfahrungen
Deutschlands Schonstes Familienhaus Kommt Von Haas Fertigbau
Regnauer Vitalhaus Seebruck
Haus Grafenberg Fertighaus Keitel
Dreigiebelhauser Tritos
Streif Erfahrungen Familie Ott
Fertighaus Villa 1 Hanse Haus
Einfamilienhaus Klara Von Fingerhut Haus Fertighaus De
Galerien Juno 402 Fingerhaus Bauen Com
Grundrissidee Massivhaus Gronau Ochtrup Haus Bauen Planen Und Bauen Architektenhaus Fertighaus Schlusselfertiges Bauen
Gallerie Mit Freiraum Unleistbar Bauforum Auf Energiesparhaus At
Haus Grafenberg Fertighaus Keitel
Hauser Mit Luft Nach Oben Bautipps De
Haas Tl 158 Hanghaus Haas Fertighaus
Einfamilienhaus Grundrisse Von 150 0 Qm Bau Welt De
Haus Grafenberg Fertighaus Keitel
Gallerie Hauser Geben Viel Licht Bautipps De
Mit Galerie Und Dachterrasse Bautipps De
Streif Musterhaus Koln In Der Fertighauswelt Koln
Grundrisse Fur Hauser Mit Galerie Viel Licht Und Platz Im Haus
Moderne Stadtvilla Melina Mit Walmdach Und Galerie Gussek Haus Hausbaudirekt De
Grundriss Obergeschoss Einfamilienhaus Modern Mit Satteldach Architektur Galerie Luftraum Fertighaus Grundriss Id Haus Grundriss Einfamilienhaus Grundriss
Mit Galerie Und Dachterrasse Bautipps De
Mit Der Galerie Als Verbindungsbereich Zu Mehr Attraktivitat Livvi De
Musterhaus Bad Vilbel Keitel Haus
Ebenerdiger Massivhaus Bungalow Duisburg Moers Satteldach Schlusselfertiges Bauen Zum Festpreis
Offenes Landhaus Kaiser Mit Giebelverglasung Und Galerie


