Sheddach Detail Holz
Tragwerks Detail Betontragwerk In Rautenform Im Yellow Building Detail Magazin Fur Architektur Baudetail
Technik Deckensysteme Aus Holz Detail Inspiration
Hallen Neubau Mit Dach Komplett In Holz
Solarlux Campus Melle Deutsche Bauzeitschrift
Diskussion Holz Ein Universeller Baustoff Detail Inspiration
Zweifach Sporthalle Mit Faltwerk Holzbau Offensive Bw
Holz Buy this stock photo and explore similar images at Adobe Stock.
Sheddach detail holz. 1807 Erkunde Stefanos Juanitos Pinnwand „Details“ auf Weitere Ideen zu fassade, baukonstruktionen, architektur. Lineman Thiel), by Gerhart Hauptmann, explores the psychology of a railway. About Me Share Profile Email A Friend Send Social Networks Whats App;.
View 25 photos of this 5 bed, 4 bath, 7146 sqft single family home located at W135S87 Holz Dr, Muskego, WI, on sale now for $9900. Andrew Holz, MD See All Locations Locations;. 3 / BLUE WARRANT 5/28/ 344 PM.
Detail Shop Architecture & Structural Design Traditional construction material for the architecture of the future With its positive qualities and wide range of applications, wood excels in several areas It meets the holistic evaluation criteria of sustainable construction and is perfect for outdoor use in sophisticated designs and facades, as well as for use in interiors. Foto Corinne Cuendet, Clarens Der Begriff Bogendach ist nicht klar definiert. 0505 Erkunde Günter Brunners Pinnwand „Fassade HOLZ“ auf Weitere Ideen zu Fassade holz, Holzwand, Holz.
Dea Ecker (born in Heidelberg, Germany) leads Ecker Architekten, an architecture and interior design practice based in Heidelberg and Buchen, GermanyEcker's projects include the corporate headquarters for Holly Hunt, Ltd, in Chicago, the town halls in Seckach and in Rosenberg, a community center in Zimmern, the Sparkasse (bank) in Hettingen, and the House Dandelion Clock, a kindergarten for. Sehen Sie den gesamten Katalog Kalzip Construction details der Firma Kalzip auf ArchiExpo Seite 68/87. Erkunde Marc Hoffenschers Pinnwand „Holzfassade“ auf Weitere Ideen zu holzfassade, fassade, architektur.
Traditioneller Baustoff für die Architektur der Zukunft Zweisprachig Deutsch/Englisch "Best of DETAIL Holz" bündelt die Highlights aus DETAIL zum Material Holz Die Publikation bietet neben der. Erkunde Marc Hoffenschers Pinnwand „Holzfassade“ auf Weitere Ideen zu holzfassade, fassade, architektur. Erkunde Robert Krafts Pinnwand „Giebelhaus“ auf Weitere Ideen zu haus, haus architektur, architektur.
1617 Find out all of the information about the SchluterSystems product stainless steel drainage channel / with grating / patio SCHLÜTER®TROBALINE Contact a supplier or the parent company directly to get a quote or to find out a price or your closest point of sale. Abdichtung Sheddach Die Oberfläche ist verwittert und undicht Die Lösung Abdichtung Sheddach mit Dachaufbau bestehend aus Holzkonstruktion inkl Wärmedämmung, OSBPlatte, FlüssigkunststoffAbdichtung, Versiegelung Vorteile Abdichtung Sheddach 100% wasserdichte, unterlaufsichere und langlebige Ab. 1612 Erkunde Quirin Brauns Pinnwand „Holzbau Detail“ auf Weitere Ideen zu holzbau, bau, holz.
Erkunde Dilaras Pinnwand „Sheddach“ auf Weitere Ideen zu Sheddach, Architektur, Fassade. Sheddach Verglasung für großflächige OberlichtLösungen Sheddächer werden meist nach Norden geöffnet, weil sie von dort einen blendfreien Lichteinfall garantieren Weiter zu Fenster Fenster. Erkunde Dario Krauss Pinnwand „MWA Recherche“ auf Weitere Ideen zu architektur, sheddach, fabriken in der architektur.
Share Profile Print Profile Share Profile via SMS × Recipient's Phone Number eg. Holz provides applicationmatched expansion joints for a wide range of industries and uses Whether it is an elastomeric, fabric or metal expansion joint, Holz has engineered products and application expertise to solve your specific issue or problem. Traditioneller Baustoff für die Architektur der Zukunft Zweisprachig Deutsch/Englisch "Best of DETAIL Holz" bündelt die Highlights aus DETAIL zum Material Holz Die Publikation bietet neben der.
Baukonstruktionslehre 2 Vieweg 34 Auflage. Armando Gjini hat diesen Pin entdeckt Entdecke (und sammle) deine eigenen Pins bei. Erkunde Chris Ferbers Pinnwand „Holz“ auf Weitere Ideen zu holz, holzbearbeitung, holzverbindungen.
23Tem19 Bu Pin, Elise Sophe tarafından keşfedildi Kendi Pinlerinizi keşfedin ve 'e kaydedin!. Fassade Holz Holzfassade Dachkonstruktion Fassaden Gestaltung Dachformen Fabriken In Der Architektur Sheddach Industriehalle Hausbau Ideen Festhalle on Constance Lake Along the Nonnenbach river, near the city hall will be situated the new Festhalle – festival hall – of Kressbronn, on the Constance Lake. Our playground equipment is made exclusively from the wood of the local black locust We only use oak for large sculptures It is the hardest European timber and may be used in the ground without chemical wood preservation, as it belongs to resistance class 1–2 according to DIN EN 3502.
The Farmhouse Paint Bar & Banquet Hall, 4511 S 6th St, Milwaukee, WI , USA. Das verwendete Holz ist sowohl im Innen als auch im Außenbereich unbehandelt und nimmt den sichtbaren Verwitterungsprozess in Kauf Der Schutz empfindlicher Bereiche wie beispielsweise der. Holz, Linda Louise Age 77 of Fridley, MN passed away in her sleep Tuesday, June 2, She was preceded in death by her parents Wayne and Audrey Fuente,, her husband Roger Arnold Holz, daughters.
Number Charge Description Offense Date Docket Number Sentence Date Sentence Length Crime Class Arresting Agency Attempt/Commit Bond;. Fassade Holz Dachkonstruktion Holzfassade Fassaden Gestaltung Dachformen Fabriken In Der Architektur Sheddach Industriehalle Hausbau Ideen Festhalle on Constance Lake Along the Nonnenbach river, near the city hall will be situated the new Festhalle – festival hall – of Kressbronn, on the Constance Lake. Skip to Action Bar;.
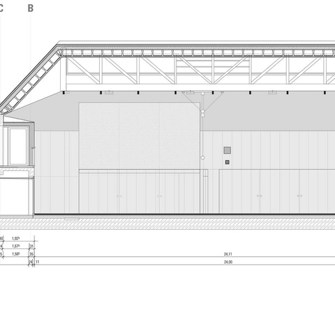
DETAIL is one of the world's most influential architectural publications Architectural professionals benefit from stimulating, uptodate informative material for design and planning Specially prepared detailed scale drawings, supplemented by text and comprehensive keys, offer a unique opportunity to study the very best in contemporary architecture. Holz und Stahl nimmt in ihrer Wellenform Das Dach ist als Sheddach ausgebildet, das diffuses Nordlicht einlässt und zur Belüftung 15 genutzt werden kann DETAIL structure Einzelheft €. Abdichtung Sheddach Die Oberfläche ist verwittert und undicht Die Lösung Abdichtung Sheddach mit Dachaufbau bestehend aus Holzkonstruktion inkl Wärmedämmung, OSBPlatte, FlüssigkunststoffAbdichtung, Versiegelung Vorteile Abdichtung Sheddach 100% wasserdichte, unterlaufsichere und langlebige Ab.
Shady Hill Holz first began when the young family got an opportunity to work cutting and assembling oak accessory items for a local business As time went on and the business took off, they opened their own shop in 1998 to spend more time as a family working from home. "Best of DETAIL Holz" bündelt die Highlights aus DETAIL zum Material Holz Die Publikation bietet neben der theoretischen Basis einen umfangreichen Projektteil, der vom Experiment bis zum ausgeklügelten Detail jede Menge Inspirationen und konstruktive Lösungsbeispiele liefert. Bisherige HolzporträtsFichte https//wwwyoutubecom/watch?v=SLwTtDzo&t=879sEiche https//wwwyoutubecom/watch?v=7hh_7Xp8IAE&t=1117sPurplewood ist optisc.
Save on the new car or SUV you really want with Holz Motors, Inc's current Chevrolet special offers Check out our current sales!. Free 3D CAD models including AutoCAD 3D blocks , free sketchup components , Revit families , solidworks models and 3ds max models for use in your 3D CAD designs. VD Werkstätten Holz in Form produces high quality wood products, which can be used for all areas of interior such as wall cladding and furniture info@vdwerkstaettende.
HolzSegmentbogendach des Architekturateliers der ETH Lausanne von SAM Architekten Bild Lignum, Zürich;. DachräumE entwerfen, konstruieren, bewohnen Das Dach ist eines der bestimmendsten Elemente der Architektur In seiner geneigten Form gehört es zu dem allseits vertrauten Bild vom Haus, und auch. Skip to main content;.
HOLZHER GmbH Großer Forst 4 Nürtingen Germany Tel 49 Fax 49 info @holzhercom Directions as PDF for download. Pin Das Sheddach wird oft für Fabriken genutzt, da große Hallen damit überdacht werden können Wie bei Grund 1 schon erwähnt besteht ein Sheddach aus verschiedenen „Reitern“ die als Dachaufbauten konstruiert werden Durch diese Aufbauten wird die komplette Konstruktion automatisch verstärkt Dadurch werden weniger Stützen für den Dachaufbau benötigt. 0419 Erkunde Erica Krebss Pinnwand „vordach“ auf Weitere Ideen zu vordach, dach, haus.
Die Nr 1 für Fenster und Türen online Fensterfabrik seit 1872. Holzschindeln Holzbau Moderne Häuser Neubau Haus Ideen Ferien Haus Holz Wohnen Style At Home Neubau Ferienchalet Wir sind ein Holzbauunternehmen, das sich um die Anliegen seiner Kunden versteht, umweltbewusst denkt und mit knapp 60 Jahren Erfahrung punkten kann. Detail Shop Architecture & Structural Design Traditional construction material for the architecture of the future With its positive qualities and wide range of applications, wood excels in several areas It meets the holistic evaluation criteria of sustainable construction and is perfect for outdoor use in sophisticated designs and facades, as well as for use in interiors.
Bisherige HolzporträtsFichte https//wwwyoutubecom/watch?v=SLwTtDzo&t=879sEiche https//wwwyoutubecom/watch?v=7hh_7Xp8IAE&t=1117sPurplewood ist optisc. Other articles where Papa Hamlet is discussed German literature Naturalism prose sketches under the title Papa Hamlet (18), in which the characters’ actions are captured in minute, realistic detail The technique was known as Sekundenstil (“secondbysecond style”) The novella Bahnwärter Thiel (18;. Sales Service Parts Body Shop 5961 S 108 Pl , Hales Corners, WI.
Erkunde Theo Jungs Pinnwand „holzkonstruktion“ auf Weitere Ideen zu holzkonstruktion, holz, holzwerkstatt. Für die Dimensionierung werden folgende Flächen berücksichtigt Art der Fläche Rütter Areal Sheddach Baufeld 13 Produktinformationen, Hersteller und Planungsdetails zum Thema Sheddach Wir zeigen Ihnen die passenden Produkte, Anwendungsbeispiele und die richtigen Bauexperten Hier allerdings als Alternative zum Flachdach. 2111 Erkunde Ness Pinnwand „Enko 4“ auf Weitere Ideen zu architektur, konzept architektur, holzskelettbau.
In diesem Video wird gezeigt, wie ein modernes Flachdach gedeckt und abgedichtet wird Mehr Infos unter http//wwwdachdeckereimarskede/produkte/flachdach. Holz Chevrolet Buick GMC's cuttingedge service facility is equipped to handle any type of vehicle maintenance and repair To set up a service appointment in Watertown, fill up our online form today!. Item Description Seller assumes all responsibility for this listing For sale Holtz higher sliding tablesaw I don’t know much about the saw I do know it was a running so I’ll take it out of production has many many good parts still left on her including a fence system and table top I will touch photos any other questions motor scoring blade all of that is intact pick up in Portland Oregon.
“Saz’s gave me the skillset for life and a culinary career, which has brought me back full circle to my roots” It would seem, then, that rolling mozzarella sticks by hand in the basement prep kitchen at Saz’s State House was the launch pad to the culinary career of Sous Chef Steve Holz. HolzSegmentbogendach des Architekturateliers der ETH Lausanne von SAM Architekten Bild Lignum, Zürich;. Traditioneller Baustoff für die Architektur der Zukunft Zweisprachig Deutsch/Englisch "Best of DETAIL Holz" bündelt die Highlights aus DETAIL zum Material Holz Die Publikation bietet neben der.
Ll HolzAluminiumfenster Schnitte Regeldetails Anschlussdetails & CAD Pläne Qualität made in Germany sicherer & schneller Versand!. Denn im «Urwald» Unterwilerberg wachsen über 1’0 Eiben, was ihn zu einem der grössten und schönsten Eibenwälder in der Schweiz macht Seit 1961 wird hier kein Holz mehr genutzt Deshalb sind heute einzelne Bäume bis zu 0 Jahre alt Erfahren Sie weitere Detail zu diesem grossartigen Projekt auf «Wald Baden».
Http Forum Holzbau Com Nl Pdf Nl114 Mikado Pdf
Sheddach
Spezial Dammung Schutzt Sheddach Sanierung Der Sheddacher Auf Dem Bmw Ersatzteillager In Dingolfing Bauhandwerk
Www Mikado Online De Wp Content Uploads Projekt Finder 14 11 Gewerbe Geisingen Pdf
Www Kalzip Com Wp Content Uploads 19 12 Kalzip Technikbroschuere Dachsysteme 1 Pdf
Sanierung Der Metallwerkstatt Am Technischen Schulzentrum In Heilbronn Coole Schmiede Db Deutsche Bauzeitung
Auhagen Sheddach Rot Duo Shop De
Sheddach Selbst Bauen Scheddach Sagedach Pultdach Shedhalle Technik Patente Ebay
Timbatec At Timbatec Holzbauingenieure Schweiz Ag
Velux Sheddach Lichtband 25 90 Velux Commercial
Objektbau Mit Velux Modular Skylights Detail Magazin Fur Architektur Baudetail
Modusteck Spur 0 Dach Sheddach Sheedach Flachdach Modelleisenbahn
Zweifach Sporthalle Mit Faltwerk Holzbau Offensive Bw
Sheddach Baubeaver
Glasolux Dachverglasung Und Oberlichter Fur Steile Und Flache Dacher
Sheddach Vorteile Nachteile Und Kosten Das Haus
Www Leimholz Ch Sites Default Files Public Download Produkte Downloads Rosenfabrik Pdf
Bailly Schule In Saint Denis F Geneigtes Dach Bildung Baunetz Wissen
Sheddach Noah Haus
Firmensitz Ramoser Holz Bozen Ita Rubner Holzbau
Energiestrome Behnisch Architekten Entwerfen Energietechnik Labor Bei Karlsruhe
Abdichtung Sheddach
Schweiger Dach Gmbh Tss Pin Der Solarbefestiger Fur Das Flachdach
Das Sheddach Alles Wissen Uber Diese Dachform
Sheddach Baubeaver
Lagern Mit Licht Firmengebaude In Steinenbronn Lagern Mit Licht Firmengebaude In Steinenbronn Detail De In Timber Architecture Roof Design Wood Architecture
Atlas Sanierung By Detail Issuu
Aglasterhausen Juni 13 Sheddach 2 2 Binder Bedachungen
Holzstanderbauweise Infos Vorteile Nachteile Das Haus
Ausgezeichneter Industrieller Holzbau Bauhandwerk
Www E Periodica Ch Cntmng Pid Sbz 002 1961 79 734
Sturme Kafer Und Preisverfall Schmalern Gewinn Im Forst
Kokon Bauhandwerk
Fertigbauteil Aus Holz Ist Hochtragfahig Fur Grosse Stutzenraster
Pariser Leichtigkeit Aufstockung Mit Sheddach Detail Magazin Fur Architektur Baudetail
Stallform Fur Rinder Dausch Hallen
Auhagen Sheddach Rot Duo Shop De
s Detail Magazin Fur Architektur Baudetail
Velux Modular Skylights Frische Luft Und eslicht In Einer Grossbackerei Garantiert
Sheddach Baubeaver
Bauder Flachdach Technische Details Fur Cad Anwendungen
Vitsoe Hq Lichtdurchflutet Durch Velux Modular Skylights Velux Commercial
s Detail Magazin Fur Architektur Baudetail
Ingenieurholzbau Fur Sudtiroler Traditionsunternehmen Im Holzbau
Gewerbeimmobilie Aus Holz Halblech Holzbau Jorg
Solarlux Campus Melle Deutsche Bauzeitschrift
Hallen Neubau Mit Dach Komplett In Holz
Kindergarten Ins Pm Mangold
Dachstuhl
Neubau Werkhalle Schmidlin Steinen
Stallform Fur Rinder Dausch Hallen
Sheddach Baubeaver
Was Sind Massivdacher
Dach Detail Umweltbundesamt In Dessau Detail Magazin Fur Architektur Baudetail
Modusteck Spur 0 Dach Sheddach Sheedach Flachdach Modelleisenbahn
Modusteck Spur 0 Dach Sheddach Sheedach Flachdach Modelleisenbahn
Aglasterhausen Juni 13 Sheddach 2 2 Binder Bedachungen
Dacharten Und Dachformen
Was Sind Massivdacher
Unterkonstruktion Fur Sheddach Pdf Free Download
Abdichtung Sheddach
Detail 11 18 Licht Und Raum Lighting And Space By Detail Issuu
Fabrikgebaude In Leamington Spa Detail Inspiration Architektur Heute Coole Architektur Sheddach
Ausbildunsgzentrum Fur Den Baumeisterverband In Gordola Geneigtes Dach Bildung Baunetz Wissen
Http Forum Holzbau Com Nl Pdf Nl114 Mikado Pdf
Zink An Sheddach Und Fassade Von Vmz Detail Magazin Fur Architektur Baudetail
Indoor Outdoor Sporthalle Villacelama Von Quiros Presa Detail Magazin Fur Architektur Baudetail
Www Schlosser Projekt De Wp Content Uploads 01 Swg Produktionshalle Mikado 1 2 Pdf
Holzbauburo Reusser Gmbh Winterthur Sheddach Schuppen Ideen Schuppen Design
Schweiger Dach Gmbh Tss Pin Der Solarbefestiger Fur Das Flachdach
Das Sheddach Alles Wissen Uber Diese Dachform
s Detail Magazin Fur Architektur Baudetail
Velcdn Azureedge Net Media Marketing De Dokumente Pdf Produktanleitungen Produktinformationen Modular Skylights Velux Modular Skylights Unterkonstruktion Sheddach Pdf
Dachkonstruktionen Folienmappe Holzbau Pdf Kostenfreier Download
Warschauer Strasse Architekten Jbw Janssen Becker Wahl
Dach Detail Umweltbundesamt In Dessau Detail Magazin Fur Architektur Baudetail
Tragwerks Detail Betontragwerk In Rautenform Im Yellow Building Detail Magazin Fur Architektur Baudetail
Sporthalle Riedenberg
Zweifach Sporthalle Mit Faltwerk Holzbau Offensive Bw
Http Www Forum Holzbau Ch Pdf Hbs Bauphysik 13 Kruse Pdf
Diglib Tugraz At Download Php Id 576a7875e87e2 Location Browse
Schweiger Dach Gmbh Tss Pin Der Solarbefestiger Fur Das Flachdach
Archicad Asymmetrischs Sheddach Tektorum De
Informationsdienst Holz De Fileadmin Publikationen 2 Holzbau Handbuch R01 T03 F11 Industrie Und Gewerbebau 08 Pdf
Zweifach Sporthalle Mit Faltwerk Holzbau Offensive Bw
Monolith In Holz Fur Urbanes Zentrum
Glas Marte Zuschneidehalle Bregenz Hk Architekten Hk Architekten
Neubau Werkhalle Schmidlin Steinen
Www H Schmelzer Gruppe De Wp Content Uploads 17 04 Tdm2 10 16 Mikado Pdf
Metall Und Schweisserwerkstatt Des Technischen Schulzentrums Heilbronn Gebaudetechnik Kultur Bildung Baunetz Wissen
Informationsdienst Holz De Fileadmin Publikationen 2 Holzbau Handbuch R01 T03 F11 Industrie Und Gewerbebau 08 Pdf
Sheddach Architektur Google Suche Architektur Sheddach Holzpavillon
Solarlux Campus Melle Deutsche Bauzeitschrift
Pariser Leichtigkeit Aufstockung Mit Sheddach Sheddach Minimalistische Architektur Architektur


